Mandataire
Privé
Localisation
Neuilly Plaisance
Seine-Saint-Denis
Année
2009
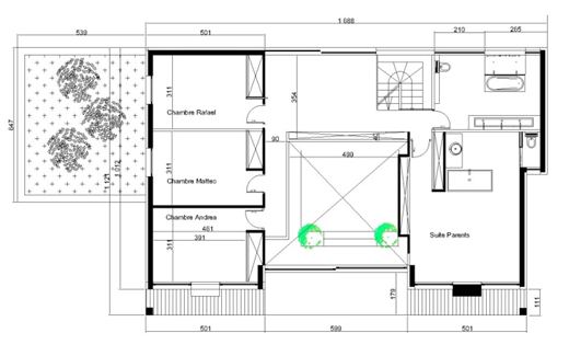
Réalsiation d’une maison moderne de ville
Ce projet est construit en collaboration avec Green Architecture.
La façade arrière du projet donnant sur un jardin paysager de la région parisienne s’ouvre sur les deux niveaux de la maison qui par le jeux des volumes intérieurs, communiquent avec l’extérieur et permet de faire pénétrer la lumière dans l’ensemble de la maison.



